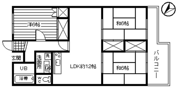
おすすめのエリア 山の田中央町 / 大字妻崎開作 / 下到津 / 清末西町 / 大手町 / 田方 / 新垢田南町 / 一の宮町 / 黄金 / 片野 1件 新着順 安い順 高い順 おすすめ順 住所ごと順 建物面積の広い順 土地面積の広い順 築年数が新しい順 中古マンション 北九州市小倉北区井堀 井堀北団地 505 350万円 5階 / 64.47㎡ / 3LDK /築50年 /5階建 日豊本線「南小倉」駅 徒歩27分 バス・トイレ別 こだわりポイント満載の井堀北団地。クローゼット付きの物件です。7.5㎡の広さのバルコニー付き物件です。価格は350万円です。新しいお住まいにいかがでしょうか。おすすめポイントの多い中古マンションです。 1
こだわりポイント満載の井堀北団地。クローゼット付きの物件です。7.5㎡の広さのバルコニー付き物件です。価格は350万円です。新しいお住まいにいかがでしょうか。おすすめポイントの多い中古マンションです。