プランタウン清末西町 3号地

3,780万円

山口県下関市清末西町2丁目

山陽本線「小月」駅徒歩28分

価格
3,780万円
間取り
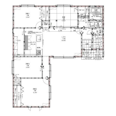
4LDK
土地面積
215.80㎡
所在地
山口県下関市清末西町2丁目
交通

山陽本線小月」駅 徒歩28分

建物面積
112.61㎡
築年月
2026年10月(予定)

物件の特徴

  • バストイレ別

  • 室内洗濯機置場

  • TVモニタ付きインターホン

  • カウンターキッチン

  • 浴室乾燥機

  • オートロック

セールスポイント

清末小学校まで徒歩10分の好立地でお子様にも安心のお住まいを。
全7区画の『プランタウン清末西町』
静けさと広さを兼ね備えた、子育てに優しい住環境で暮らしてみませんか。

『床暖房』を標準採用しているため、冬でも家族がくつろげる、ぬくもりに包まれた快適な暮らしを叶えます。
SIAAマーク認証の『抗菌』・『抗ウイルス』・『防カビ』仕様で、お子様やペットにも安心の暮らしをお届けします。

ポイント

 

担当者のコメント

山村 涼崇

開放感あふれる吹き抜けリビングの家建築中!6月完成予定♪

基本情報

販売戸数
-
総戸数
-
間取り / 詳細
4LDK
LDK 16.0帖/和室 6.0帖/洋室 8.0帖/洋室 6.0帖/洋室 6.0帖
向き
建物面積(坪数)
112.61㎡(34.06坪)
土地面積(坪数)
215.80㎡(65.27坪)
建ぺい率 /
容積率
60%/200%
築年月
2026年10月(予定)
土地権利
所有権
土地
(敷金 / 保証金)
- / -
建物構造
木造 / 2階建
傾斜地部分面積
-
路地状敷地
-
私道負担面積
-
セットバック
高圧線下面積
-
施工会社
(株)プランハウス
用途地域
第一種住居
地目 / 地勢
宅地 / 平坦
接道状況
一方(南 公道 6.0m 間口 14.4m)
国土法届出要否
不要
都市計画
市街化区域
総区画数 /
販売区画数
-/-
現況
未完成
その他
法令上の制限
-
取引態様
売主
引渡し
相談
取引条件の
有効期限
2026年05月03日

設備条件

設備条件
  • 陽当り良好 / 閑静な住宅地 / バリアフリー / 仲介手数料無料 / 室内洗濯機置場 / フローリング / 都市ガス / 公営水道 / 公共下水 / 24時間換気システム / 電気有 / 照明器具付き / 駐車3台可 / 耐震構造 / ガスコンロ / コンロ2口以上 / 食器洗い乾燥機 / システムキッチン / カウンターキッチン / コンロ3口 / オープンキッチン / バス・トイレ別 / 追焚機能浴室 / 浴室乾燥機 / 温水洗浄便座 / オートロック / TVモニタ付インターホン / 宅配ボックス / 複層ガラス / ディンプルキー
設備(その他)
    -

その他

物件番号
101772444
管理コード
-
建築確認番号
第HP03-4106628号
情報更新日
2026年04月19日
次回更新予定日
2026年05月03日
取扱会社
  • 株式会社プランハウス
  • 山口県下関市武久町2丁目3-1 佐野ビル1F
  • TEL:0120-590-788
  • 国土交通大臣 (4) 第7371号
備考
資料請求
 □随時受付中
 □お問い合わせ先:0120-590-788

物件見学会(現地スタッフ不在の為、事前に必ずご予約ください)
 ■日程/随時案内可能
 ■時間/10:00~17:00
※上記時間以外でのご見学希望のお客様はフリーダイヤルまで。

「案内時間の目安は下記をご参考ください」
 ■モデルハウス見学 60分~90分
 ■資金計画のご相談 30分前後

◎現地案内は随時受付しております。(要予約)
◎お客様のご都合に合わせてご案内いたします。
◎資料請求のみもお気軽にお問い合わせください。
◎その他ご要望はお問い合わせの際にお申し付けください。

●入力不要なお電話でのお問い合わせも可能です。
「0120-590-788」までお気軽にお問い合わせください。

プランタウン清末西町の他の物件

  1. 2号地

    4LDK (98.95㎡)

    3,880万円(129.64万円/坪)

周辺施設

  • 清末保育園の画像

    保育園

    清末保育園

    610m(8分)

  • 下関市立清末幼稚園の画像

    幼稚園

    下関市立清末幼稚園

    779m(10分)

  • 下関市立清末小学校の画像

    小学校

    下関市立清末小学校

    876m(11分)

  • 下関市立東部中学校の画像

    中学校

    下関市立東部中学校

    1580m(20分)

支払いシミュレーション

月々の支払額

※実際の金額と異なる場合があります。

購入希望物件価格
万円
頭金
万円
金利
%
返済額(ボーナス1回分)
万円
返済期間

※ボーナスは自動で年2回分で計算されます。

近隣の物件

  1. プランタウン清末鞍馬Ⅲ

    下関市清末鞍馬2丁目

    4LDK (104.33㎡)

    3,880万円

  2. フルリノベーション済 安岡駅前1丁目

    下関市安岡駅前1丁目

    4LDK (116.42㎡)

    1,998万円

  3. プランタウン新垢田南町

    下関市新垢田南町3丁目

    4LDK (109.72㎡)

    3,480万円

  4. PEAKS山の田中央

    下関市山の田中央町

    4LDK (113.85㎡)

    3,680万円

よく見られている物件

  1. プランタウン新垢田南町

    下関市新垢田南町3丁目

    4LDK (109.72㎡)

    3,480万円

  2. ピークス山の田中央

    下関市山の田中央町

    4LDK (99.93㎡)

    3,750万円

  3. ピークス山の田中央

    下関市山の田中央町

    4LDK (104.12㎡)

    3,780万円

  4. プランタウン清末鞍馬Ⅲ

    下関市清末鞍馬2丁目

    3LDK (111.15㎡)

    3,780万円

プランタウン清末西町

プランタウン清末西町

3,780万円

-

4LDK(112.61㎡)

お気軽にお問い合わせください

無料お問い合わせ

株式会社プランハウス

0120-590-788

9:00~18:00

(休:水曜日)