ピークス山の田中央 7号地

3,880万円

山口県下関市山の田中央町14-5

山陽本線「幡生」駅徒歩18分

価格
3,880万円
間取り
4LDK
土地面積
169.64㎡
所在地
山口県下関市山の田中央町14-5
交通

山陽本線幡生」駅 徒歩18分

建物面積
104.12㎡
築年月
2025年3月(予定)

物件の特徴

  • バストイレ別

  • 室内洗濯機置場

  • TVモニタ付きインターホン

  • 浴室乾燥機

セールスポイント

こちらの物件は寒い時期に活躍する床暖房付きです。新生活をピカピカの新築戸建て物件で始めてみませんか。物件の向きは南向きです。3,880万円の物件で、ゆとりのある理想の生活をおくりましょう。下関市に特化した当社では、多種多様な不動産情報をご用意しております。不動産情報と併せて地域情報もお伝え致しますので、まずはお気軽にお問い合わせください。

ポイント

玄関ポーチ 通風良好 洗面台 浴室に窓 開発分譲地内

担当者のコメント

山村 涼崇

こだわりポイント満載のピークス山の田中央。建物面積が104.12㎡でご家族での生活にも十分な広さの物件はこちらです。来訪者を確認できる、TVインターホン付きです。浴室乾燥機のあるお風呂場は洗濯物を干すときにも便利です。下関市での新生活を当社がサポート致します。不動産の購入についてお困りの点などございましたら、ぜひご連絡くださいませ。

基本情報

販売戸数
15戸
総戸数
15戸
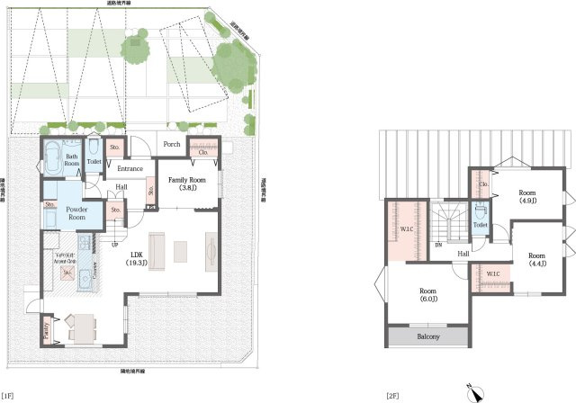
間取り / 詳細
4LDK
LDK 19.3帖 1室/洋室 3.8帖 1室/洋室 6.0帖 1室/洋室 4.9帖 1室/洋室 4.4帖 1室
向き
建物面積(坪数)
104.12㎡(31.49坪)
土地面積(坪数)
169.64㎡(51.31坪)
建ぺい率 /
容積率
60%/200%
築年月
2025年3月(予定)
土地権利
所有権
土地
(敷金 / 保証金)
- / -
建物構造
木造 / 2階建
傾斜地部分面積
-
路地状敷地
-
私道負担面積
-
セットバック
高圧線下面積
-
施工会社
(株)プランハウス
用途地域
第二種中高層住居専用
地目 / 地勢
宅地 / -
接道状況
角地(北 公道 4.8m 間口 11.8m)(東 公道 6.0m 間口 13.6m)
国土法届出要否
不要
都市計画
市街化区域
総区画数 /
販売区画数
15区画/15区画
現況
未完成
その他
法令上の制限
景観法
取引態様
一般媒介
引渡し
2025年3月31日
取引条件の
有効期限
2025年11月23日

設備条件

設備条件
  • ペット相談 / ペット飼育可 / 楽器相談 / 陽当り良好 / 閑静な住宅地 / 2人入居可 / 建設住宅性能評価書付 / 眺望良好 / ノンホルムアルデヒド / 新婚さん向け / ファミリー向け / 仲介手数料無料 / 室内洗濯機置場 / フローリング / バルコニー / ルーフバルコニー / 都市ガス / 公営水道 / 公共下水 / 24時間換気システム / 電気有 / 照明器具付き / 駐車2台可 / 駐車3台可 / 耐震構造 / ガスコンロ / コンロ2口以上 / 食器洗い乾燥機 / システムキッチン / スロップシンク / コンロ3口 / バス・トイレ別 / 浴室乾燥機 / 温水洗浄便座 / 洗面台 / トイレ2ヶ所 / 浴室1坪以上 / 床暖房 / ウォークインクロゼット / ウォークインシューズクロゼット / 収納豊富 / CS / BS / TVモニタ付インターホン / 宅配ボックス / ディンプルキー
設備(その他)
    -

その他

物件番号
90184711
管理コード
-
建築確認番号
第R6 建確建住セ下第0184号
情報更新日
2025年11月09日
次回更新予定日
2025年11月23日
備考
住み心地の良いこの物件は、価格も3,880万円と納得です。ご自宅でも楽器の演奏ができます、楽器応相談。床暖房は燃料や火を使わない暖房器具ため安全に使うことができます。きれい好きな方など幅広い層の方にお勧めの新築戸建て物件で清々しい新生活を。下関市にある一戸建てのお問い合わせは、当社が承っております。マイホームの購入を検討しているお客様のサポートを致します。

ピークス山の田中央の他の物件

  1. 1号地

    4LDK (104.12㎡)

    3,880万円(123.21万円/坪)

  2. 6号地

    4LDK (99.93㎡)

    3,750万円(124.09万円/坪)

  3. 11号地

    4LDK (108.54㎡)

    3,880万円(118.18万円/坪)

  4. 16号地

    3LDK (83.63㎡)

    4,050万円(160.14万円/坪)

  5. 2号地

    4LDK (99.93㎡)

    3,850万円(127.4万円/坪)

  6. 3号地

    4LDK (104.12㎡)

    3,880万円(123.21万円/坪)

  7. 4号地

    4LDK (99.93㎡)

    3,850万円(127.4万円/坪)

  8. 5号地

    4LDK (104.12㎡)

    3,880万円(123.21万円/坪)

  9. 12号地

    4LDK (108.54㎡)

    3,980万円(121.23万円/坪)

  10. 19号地

    4LDK (98.48㎡)

    3,950万円(132.59万円/坪)

  11. 22号地

    4LDK (105.63㎡)

    3,980万円(124.57万円/坪)

  12. 23号地

    4LDK (98.48㎡)

    3,980万円(133.6万円/坪)

周辺施設

  • 山の田中学校の画像

    中学校

    山の田中学校

    89m(2分)

  • 山口銀行山の田支店の画像

    銀行

    山口銀行山の田支店

    305m(4分)

  • 山の田小学校の画像

    小学校

    山の田小学校

    388m(5分)

  • 下関東郵便局の画像

    郵便局

    下関東郵便局

    804m(11分)

  • リブホール新垢田店の画像

    スーパー

    リブホール新垢田店

    1005m(13分)

  • のあ保育園の画像

    保育園

    のあ保育園

    1260m(16分)

支払いシミュレーション

月々の支払額
9.6
購入希望物件価格
万円
頭金
万円
金利
%
返済額(ボーナス1回分)
万円
返済期間

※ボーナスは自動で年2回分で計算されます。

近隣の物件

  1. PEAKS山の田中央

    下関市山の田中央町

    4LDK (113.44㎡)

    4,280万円

  2. プランタウン新垢田南町

    下関市新垢田南町3丁目

    3LDK (107.64㎡)

    3,480万円

  3. 長府満珠町戸建

    下関市長府満珠町

    4LDK (101.01㎡)

    1,698万円

  4. 長府満珠町 中古物件

    下関市長府満珠町

    4LDK (124.00㎡)

    1,698万円

ピークス山の田中央

ピークス山の田中央

3,880万円

-

4LDK(104.12㎡)

お気軽にお問い合わせください

無料お問い合わせ

株式会社プランハウス

0120-590-788

9:00~18:00

(休:水曜日)